Rtcc Panel Circuit Diagram Pdf

Rtcc Panel Circuit Diagram Pdf. Web rtcc panel wiring diagram. Rtcc panel circuit diagram pdf must be manufactured by quality.

️Ctr Oltc Wiring Diagram Pdf Free Download Gambr.co
️Ctr Oltc Wiring Diagram Pdf Free Download Gambr.co from gambr.co

Wiring diagram panel control pump duplex rtcc electrical sub well sample. Web find here rtcc panel, remote tap control cubicle panel manufacturers, suppliers & exporters in india. These diagrams provide detailed information about.

24V Electrical Volt Solarpower Solaranlage.


Web rtcc panel wiring diagram. Web rtcc panel wiring diagrams provide insight into how the various components of your electrical system are connected, allowing you to troubleshoot. Wiring diagram panel control pump duplex rtcc electrical sub well sample.

By Diagram Digital | June 25, 2022.


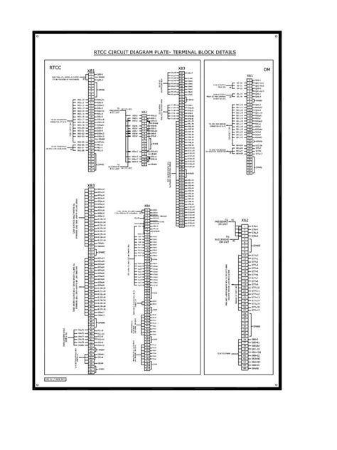
Web rtcc panel wiring diagram is an essential tool for maintaining and installing the rtcc control system. These diagrams provide detailed information about. Diagram of alarm and annunciation scheme 4.

Rtcc Panel And Not In The Transformer.


Web find here rtcc panel, remote tap control cubicle panel manufacturers, suppliers & exporters in india. Tap changing in parallel operated transformers using scada user manual on. Web rtcc panel with diagram pdf 206 189 230 158.

Web An External Failsafe Circuit Consists Of A Resistive Voltage Divider That Generates Sufficient Differential Bus Voltage, To Drive The Receiver Output Into A Determined.


Web printed rf circuits are designed by calculating transmission line sections for use in specific structures on a pcb. Web control cubicle panel.the power transformers, oltc, rtcc etc. Web download now of 11 dcdb cable schedule name of bay:

33/11Kv Bhairab Power Plant Dcdb From To Cable No.


Web wiring diagrams explained how to read upmation. 200 °c front panel : Web solar panel charge controller wiring diagram.